МИНИ-ДИН4 200 Табло световые в Магадане
Артикул: 8329
13 518 руб. / шт
16 701 руб. / шт
-19% Экономия: 3183 руб.
Удаленный склад, на заказ: 2-3 дня.
Заказы обрабатываются в рабочие дни с понедельника по пятницу с 10:00 утра и до 17:00 вечера.
Если вы оформите заказ после 17:00, в выходные или праздничные дни, он будет обработан на следующий рабочий день начиная с 10:00 утра.
Интернет-магазин "Техноком Групп" осуществляет доставку данного товара в Магадане. Для Москвы и области возможен самовывоз из офиса компании.
Наша компания более 10 лет на рынке, имеем огромный опыт. Проконсультируем по любым вопросам, подберем аналог, комплектуем системы под ключ.
Выполнены в белом цвете. Черный корпус под заказ.
Позволяют провести безопасную и эффективную эвакуацию в зданиях 4-го и 5-го типов СОУЭ. Благодаря ярким светодиодам пиктограммы на табло отлично заметны даже при слабом освещении и в очень задымленных помещениях.
Конструкция указателя рассчитана на четыре сменных изображения, которые переключаются в зависимости от поданного напряжения. Светоуказатели МИНИ-ДИН4 изготавливаются с любыми изображениями любого цвета.
Для удобства расчетов стоимости светоуказатели МИНИ-ДИН4 разделены на следующие модификации: МИНИ-ДИН4 100, МИНИ-ДИН4 200 и МИНИ-ДИН4 250. Они отличаются площадью заполнения информационного поля, токопотреблением и стоимостью.
| Модификация | МИНИ-ДИН4 |
| Напряжение питания постоянного тока, В | 9... 30 |
|
Номинальный ток потребления, мА при напряжении питания 12 В при напряжении питания 24 В |
280 140 |
| Степень защиты оболочки, IP | 41 |
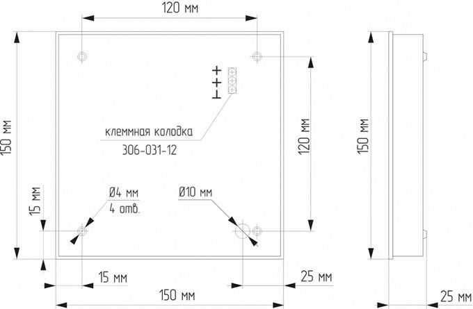
| Габаритные размеры, мм | 150 х 150 х 25 |
| Масса не более, кг | 0,22 |
| Диапазон рабочих температур, ºС | -30…+55 |
|
Относительная влажность воздуха при +25 ºС не более, % |
95 |
| Производитель (справочник) | Электротехника и автоматика |
| Тип устройства (Табло световые) | одностороннее |
| Напряжение питания (Табло световые) | 12 В |
| Потребление тока (Табло световые) | до 180 мА |
| Степень защиты (Табло световые) | внутреннее |
| Другие хар-ки (Табло световые) | надп. Выход |
| Артикул | 8329 |
| Артикул производителя | МИНИ-ДИН4 200 |
-
Alecs A. (Москва)
2022-03-31 ★ ★ ★ ★ ★
Достоинства: Широкий выбор, приемлемые цены.
Недостатки: Нет.
Комментарий: Отличный интернет магазин. Покупал здесь камеры видеонаблюдения. Проблем небыло. Хорошее качество, буду покупать здесь ещё.
Для всех приобретений, сделанных на нашем сайте, оплата может быть произведена:
- наличными в офисе компании;
- наличными при получении заказа от курьера;
- банковским переводом с расчетного счета покупателя на наш расчетный счет;
- в рассрочку (условия по ссылке);
- денежным переводом через отделения "Сбербанк" или другие банки (о размере комиссии, удерживаемой с плательщика Вы можете узнать в ближайшем к Вам отделении).
Оплата производится в рублях по внутреннему курсу компании, который Вы можете уточнить, позвонив к нам в офис.
Для выполнения Вашего заказа, нам необходимо минимальное время на его обработку. Как правило, минимальное время составляет 24 часа, но в некоторых случаях оно может увеличиться из-за того, что заказ поступил ночью или в выходные или праздничные дни. Поэтому, мы просим Вас делать свои заказы заблаговременно. Дайте нам, пожалуйста, приблизительно 1-4 рабочих дня, чтобы мы могли качественно подготовить и отправить, а Вы получить Ваш заказ в кратчайший срок.
Способы доставки в Магадане:
1. Доставка по Москве и области товара до адреса без разгрузки:
- 1 зона - 400 р. до 50 кг
- 2 зона - 500 р. до 50 кг
- 3 зона - 650 р. до 50 кг
БЕСПЛАТНАЯ ДОСТАВКА внутри МКАД:
- при оплате счета более 100 т.р. - до 150 кг
- дополнительные 100 кг +100 р.
- дополнительно за МКАД +40р за 1км
Доставка до Транспортной Компании осуществляется бесплатно, а стоимость и сроки доставки до города Магадан согласно тарифам службы доставки.
Внимание: Доставка товара осуществляется "как есть" т.е. комплектация указана на странице с товаром. Все остальные дополнительные приспособления и сервисные услуги оплачиваются отдельно.
-
Как осуществляется доставка в регионы?
Товары нашего магазина доставляют покупателям транспортные компании: Россия — EMS Почта России, СПСР-экспресс, DHL; Белоруссия — M@M; Украина — Новая Почта.
-
Возможен ли самовывоз заказанного товара?
Вы можете самостоятельно забрать заказанные товары в наших магазинах.
-
В какие сроки я могу получить свой заказ?
Это зависит от его объема, а также от конструкции и прочих специфических особенностей приобретаемого оборудования. Как правило, техника доставляется в течение 3 дней, но в любом случае рекомендуется обсудить сроки ее доставки и прочие нюансы сотрудничества с нашим представителем.
-
Возможна ли доставка в регионы?
Да! Независимо от местонахождения покупателя, заказ будет ему доставлен по указанному адресу. Для отправки техники в регионы мы сотрудничаем с авторитетными транспортными компаниями, в числе которых «Грузовозофф», «ЖелДорЭкспедиция», «Байкал Сервис», «ПЭК», «ГруппСТ» и др.
-
Действует ли у вас система скидок?
Да! Вы можете дополнительно сэкономить за счет приобретения техники по сниженным ценам. Регулярно проводятся акции, информация о которых представлена в разделе «Акции».
-
Предоставляется ли гарантия, и если да, то на какой срок?
Вся продукция сертифицирована, ее технико-функциональные качества, рабочие характеристики и эксплуатационный потенциал подтверждены документально. Предоставляется длительная (12 месяцев) официальная гарантия.
-
Каковы расценки на монтаж, подключение, пусконаладку систем видеонаблюдения?
Это зависит от сложности и разветвленности системы, особенностей приобретенного оборудования, специфики объекта и иных факторов. Несмотря на то, что наша компания не занимается монтажом систем видеонаблюдения, мы можем предоставить контакты организации, оказывающей данные услуги качественно, профессионально и быстро.
-
Могу ли я обратиться к вам для монтажа оборудования, приобретенного в другом месте?
Да, но заниматься этим будет не наша компания (мы не оказываем такие услуги), а другая организация, контакты которой мы предоставим. Это солидное, уважаемое предприятие, которое профессионально занимается данным видом деятельности и проводит полный спектр работ по монтажу, подключению, настройке и пусконаладке систем любой специфики и сложности.
-
Сколько стоит монтаж?
На этот вопрос ответят представители специализированной организации, контакты которой Вам предоставят наши менеджеры. В любом случае многое зависит от конфигурации оборудования, сложности системы, специфики конкретного объекта и прочих нюансов.
-
Если я приобрету у вас товар, могут ли ваши специалисты заодно переделать монтаж, выполненный предыдущими исполнителями?
Данный вопрос крайне сложен и требует индивидуального рассмотрения. В принципе, такая возможность существует, однако многое будет зависеть от того, кто и как производил монтаж, насколько соблюдены действующие в данной сфере регламенты, технологии и стандарты, какая аппаратура использовалась и т. д.
За последнее время товаром интересовалось 4154 человек.





